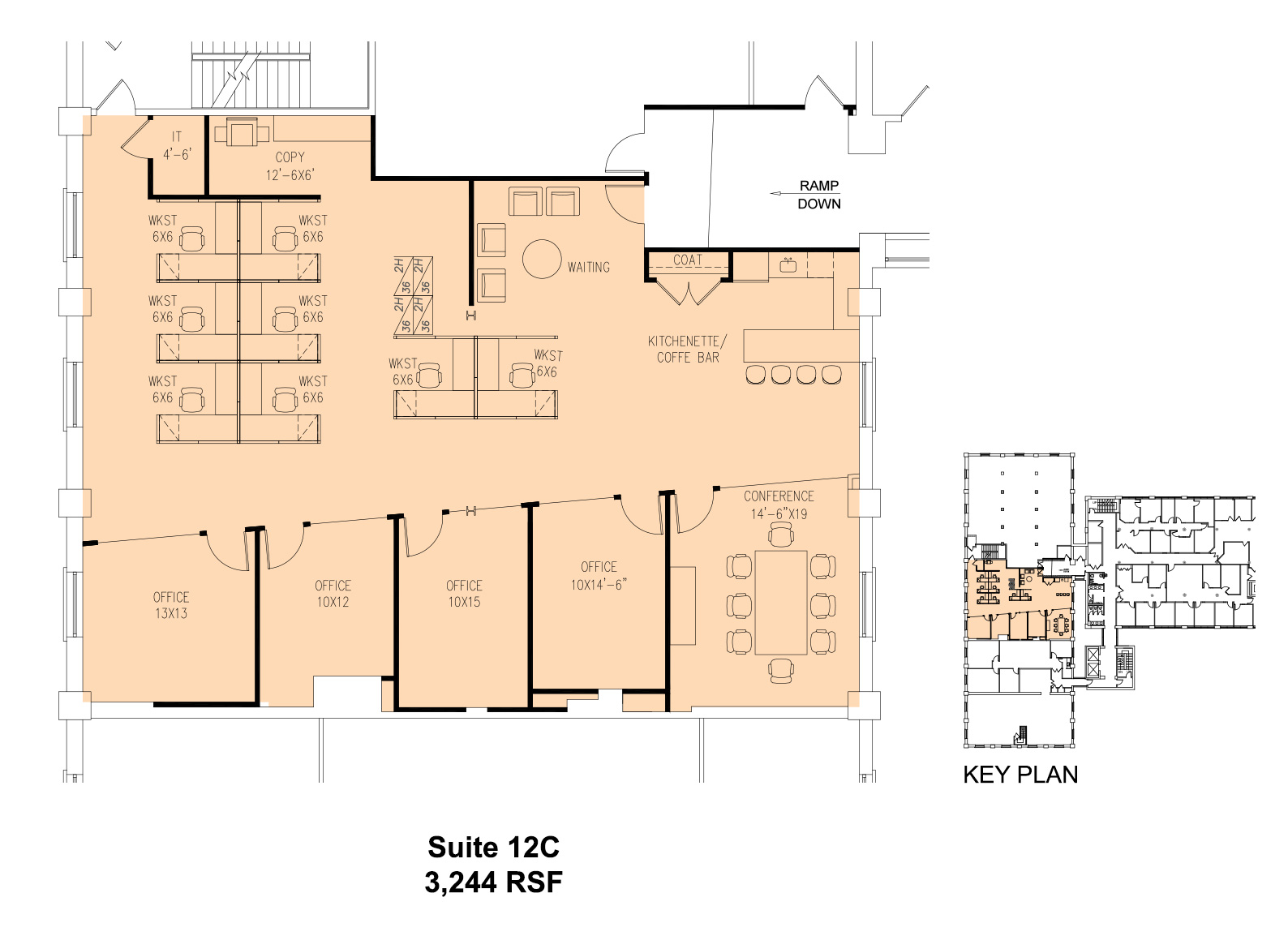
2ND FLOOR
Suite 12C
3,244 RSF
Download Plan
×