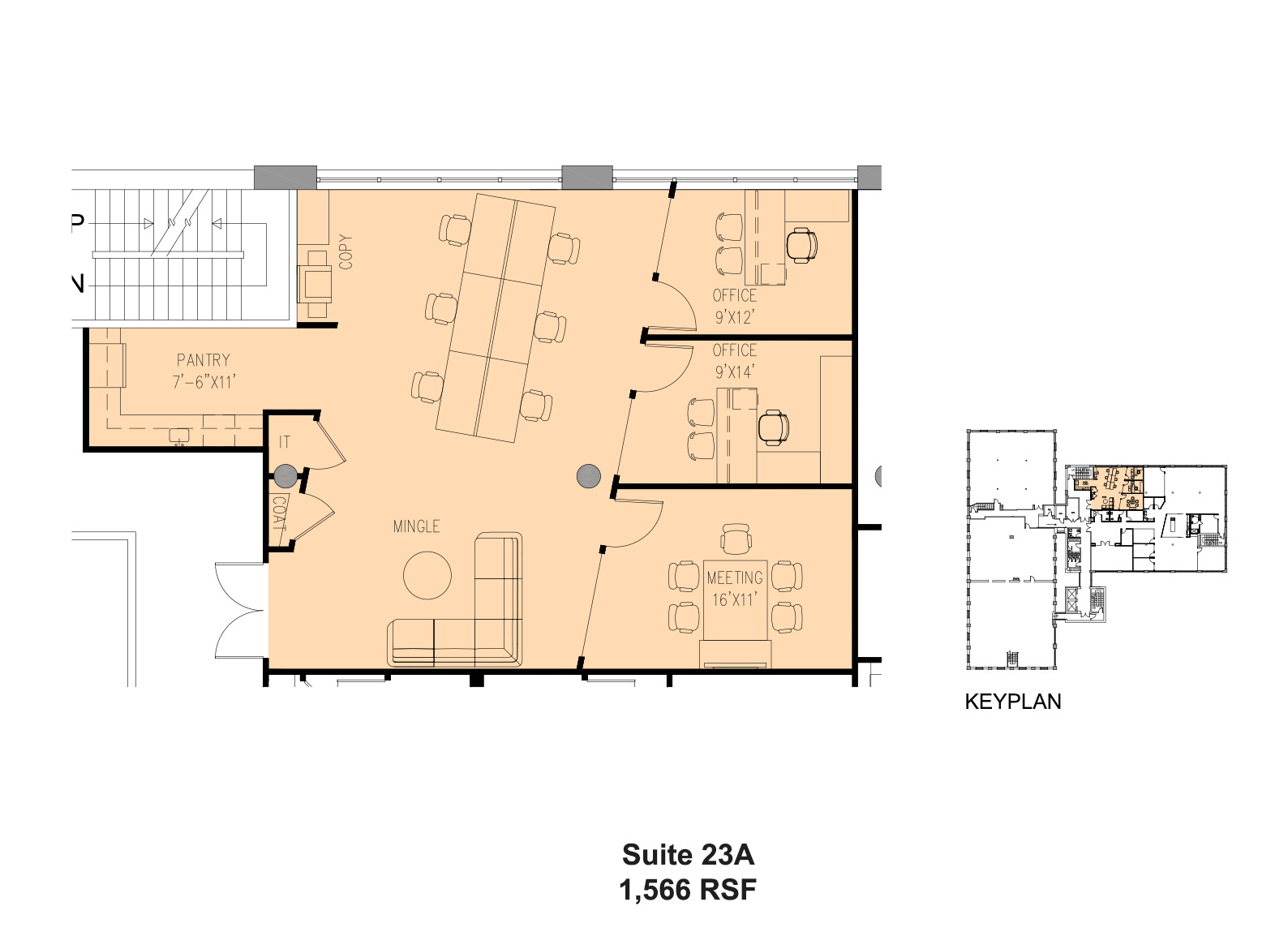
3RD FLOOR
Suite 23A
1,566 RSF
Download Plan
×